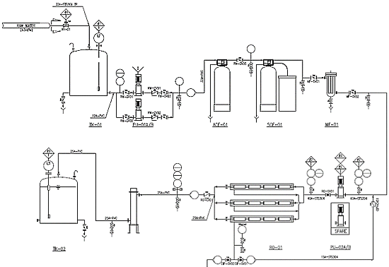
수처리설비

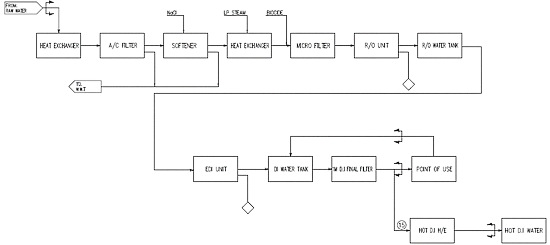
일반적으로 순수란, 간단한 전처리시스템을 거친 원수를 온교환수지를 통과시켜 저항값을 어느 수준까지 끌어 올린물 또는 증류장치로 얻어진 물을 말한다.
그러나 최근에는 반도체, 태양광, 제약회사에 사용되는 물은 금속이온은 물론, 유기물, 미립자, 미생물도 극한까지 제거된 초순수가 사용되고 있다.
이렇게 하여 생산성 향상은 물론 LSI Pattern을 보다 세밀화하는 것도 가능하게 되었다.
또, 초순수의 사용량이 많기 때문에 생산비용을 낮추기 위해 R/O SYSTEM이 전처리 공정에 사용되고 후처리 공정으로는 EDI, MBP, U/F가 사용된다.












